//noscript

Nosotros

Somos una empresa dedicada a satisfacer la creciente necesidad de infraestructura y equipamiento dentro y fuera del estado, además de construir y mantener nuevos espacios de uso habitacional, comercial e industrial.

Conozca nuestro portafolio o envíenos un mensaje.

Misión

Desarrollar proyectos de infraestructura buscando satisfacer las necesidades de nuestros clientes desde antes hasta luego de terminado el proyecto, ofertando diseños a la vanguardia cumpliendo con los estándares de calidad.

Innovar con las últimas tendencias encontradas en el sector de la construcción, buscando mejorar los procesos para hacer más eficiente el producto final.

Visión

Vision

Ser una empresa líder en el sector de la construcción, con un equipo comprometido, evolucionando constantemente para ofrecer productos innovadores que satisfagan las necesidades de los clientes, con altos estándares de calidad, cumplimiento, diseño y conciencia de servicio al cliente que garanticen solidez de la empresa.

valores

Vision
  • Profesionalismo.
  • Compromiso.
  • Honradez.
  • Innovación.
  • Trabajo en equipo.

Servicios

Urbanización Equipamiento Urbano
Edificación De Vivienda Terracerías Y Plataformas
Pavimentos Rígidos Y Flexibles Obras Hidráulicas Y Sanitarias
Estructura Metálica Y Pailera Colectores Pluviales Y Accesorios
Renta De Maquinaria Pesada Renta De Equipo Ligero De Const
Obras De Restauración Carretera Construcción De Naves Industriales
Mantenimiento De Pisos Industriales Colocación De Multipanel Y Lámina
Construcción De Guarniciones Y Banquetas Construcción De Espacios Educativos
Construcción De Espacios Deportivos Proyectos Llave En Mano De Energía Renovable
Construcción De Parques Recreativos Y Culturales Cisternas Y Tanques De Acero Al
Carbón E Inox De Gran Capacidad

Obras

De clic en la descripción de la obra para conocer más.

# Descripción Cliente Monto Duración Periodo
1 Construcción de línea de conducción y pozo No. 3 en la comunidad de Gómez Portugal en Jesús María, Aguascalientes Emulsiones Asfálticas de Ags. $ 1,369,391.73 10 semanas
2 Construcción de red de agua potable en El Edén, a un costado del centro comercial Cantia Comisión Ciudadana de Agua Potable $ 483,437.91 8 semanas
3 Construcción de sendero peatonal con ciclo vía en Av. 30 de septiembre en el fraccionamiento Lomas del Mirador, que incluyó la construcción de muro de mampostería de 3,509 m³ Secretaría de Obras Públicas del Municipio de Aguascalientes $ 7,992,562.51 15 semanas
4 Construcción de nave industrial Delta Etapa 3 (mano de obra): Trabajos de cimbrados, colado de pisos, banquetas, guarniciones, colocación de tuberías, habilitado y armado de elementos estructurales Grupo Constructor PEASA S.A. de C.V. $ 723,520.00 12 semanas Septiembre de 2017
5 Trabajos de obra civil planta MALTRAS, Zacatecas Constructora Chufani S.A. de C.V. $ 300,000.00 8 semanas Octubre de 2017
6 Trabajos de Obra Civil planta SAMTECH, León Constructora Chufani S.A. de C.V. $ 1,100,000.00 15 semanas Septiembre de 2017
7 Construccion de 80 casas de 150 m² tipo Residencial, Fraccionamiento Muralia: Albañileria, estructura y acabados. Grupo Constructor PEASA S.A. de C.V. $ 12,500,000.00 52 semanas Agosto de 2015 a la fecha
8 Construccion De Alcantarillado Comunidad De La Dichosa, Asientos, Aguascalientes. Secretaria De Obras Públicas Del Municipio De Asientos $ 1,294,033.00 6 semanas Noviembre a Diciembre de 2017
9 Parque La Lagunita 1er. Etapa. Calle Obregon S/N Col. Guadalupe, Rincon De Romos, Aguascalientes. Secretaria De Obras Públicas Del Municipio De Asientos $ 2,500,000.00 6 semanas Noviembre a diciembre de 2017
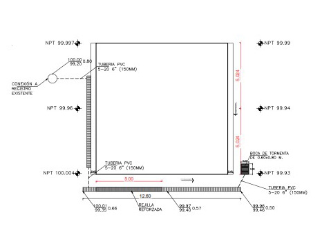
10 Construccion de Planta de Tratamiento de Aguas Residuales. OICA S.A. DE C.V. $ 350,000.00 8 semanas Enero a Febrero de 2018
11 Construccion De Torre De Departamentos San Telmo (Albañilería) Grupo Constructor PEASA S.A. De C.V. $ 1,630,000.00 12 semanas Febrero a Mayo de 2018
12 Construccion de Cuarto Secador En COMPAS Cooperation Manufacturing Plant Aguascalientes, S.A.P.I. de C.V. $ 3,692,924.53 12 semanas Marzo a mayo de 2018
13 Instalación De Luminarias Cooperation Manufacturing Plant Aguascalientes, S.A.P.I. de C.V. $ 340,639.75 1 semana Mayo de 2018
14 Resposición de Tablero Cooperation Manufacturing Plant Aguascalientes, S.A.P.I. de C.V. $ 75,476.00 1 semana Junio de 2018
15 Construcción de Trinchera Cooperation Manufacturing Plant Aguascalientes, S.A.P.I. de C.V. $ 226,854.58 4 semanas Julio - Agosto de 2018
16 Instalación Valvula de Extracción En DI Cooperation Manufacturing Plant Aguascalientes, S.A.P.I. de C.V. $ 220,465.87 4 semanas Agosto - Septiembre de 2018
17 Construcción de Muro de Tablaroca Cooperation Manufacturing Plant Aguascalientes, S.A.P.I. de C.V. $ 89,670.09 1 semana Agosto - Septiembre de 2018
18 Colocación De Bolardos Secretaría De Obras Públicas $ 1,244,787.25 4 semanas Julio - Agosto de 2018

Portafolio 1/18

Construcción de línea de conducción y pozo No. 3 en la comunidad de Gómez Portugal en Jesús María, Aguascalientes

Cliente: Emulsiones Asfálticas de Ags.
Monto del contrato: $ 1'369,391.73
Tiempo de ejecución: 10 semanas
1.1
1.2

Portafolio 2/18

Construcción de red de agua potable en El Edén, a un costado del centro comercial Cantia

Cliente: Comisión Ciudadana de Agua Potable
Monto del contrato: $ 483,437.91
Tiempo de ejecución: 8 semanas
2.1
2.2

Portafolio 3/18

Construcción de sendero peatonal con ciclo vía en Av. 30 de septiembre en el fraccionamiento Lomas del Mirador, que incluyó la construcción de muro de mampostería de 3,509 m³

Cliente: Secretaría de Obras Públicas del Municipio de Aguascalientes
Monto del contrato: $ 7'992,562.51
Tiempo de ejecución: 15 semanas
3.1
3.2
3.3
3.4

Portafolio 4/18

Construcción de nave industrial Delta Etapa 3 (mano de obra):
Trabajos de cimbrados, colado de pisos, banquetas, guarniciones, colocación de tuberías, habilitado y armado de elementos estructurales

Cliente: Grupo Constructor PEASA S.A. de C.V.
Monto del contrato: $ 723,520.00
Tiempo de ejecución: 12 semanas
Periodo: Septiembre de 2017
4.1
4.2
4.3
4.4

Portafolio 5/18

Trabajos de obra civil planta MALTRAS, Zacatecas

Cliente: Constructora Chufani S.A. de C.V.
Monto del contrato: $ 300,000.00
Tiempo de ejecución: 8 semanas
Periodo: Octubre de 2017
5.1
5.2
5.3

Portafolio 6/18

Trabajos de Obra Civil planta SAMTECH, León

Cliente: Constructora Chufani S.A. de C.V.
Monto del contrato: $ 1'100,000.00
Tiempo de ejecución: 15 semanas
Periodo: Septiembre de 2017
6.1
6.2
6.3

Portafolio 7/18

Construccion de 80 casas de 150 m² tipo Residencial, Fraccionamiento Muralia: Albañileria, estructura y acabados.

Cliente: Grupo Constructor PEASA S.A. de C.V.
Monto del contrato: $ 12'500,000.00
Tiempo de ejecución: 52 semanas
Periodo: Agosto de 2015 a la fecha
7.1
7.2
7.3
7.4

Portafolio 8/18

Construccion De Alcantarillado Comunidad De La Dichosa, Asientos, Aguascalientes.

Cliente: Secretaria De Obras Públicas Del Municipio De Asientos
Monto del contrato: $ 1'294,033.00
Tiempo de ejecución: 6 semanas
Periodo: Noviembre a Diciembre de 2017
8.1
8.2
8.3

Portafolio 9/18

Parque La Lagunita 1er. Etapa. Calle Obregon S/N Col. Guadalupe, Rincon De Romos, Aguascalientes.

Cliente: Secretaria De Obras Públicas Del Municipio De Asientos
Monto de ejecución: $ 2'106,657.00
Monto de ampliación: $ 393,343.00
Tiempo de ejecución: 6 semanas
Periodo: Noviembre a Diciembre de 2017
9.1
9.2
9.3

Portafolio 10/18

Construccion de Planta de Tratamiento de Aguas Residuales.

Cliente: OICA S.A. DE C.V.
Monto de ejecución: $ 350,000.00
Tiempo de ejecución: 8 semanas
Periodo: Enero a Febrero de 2018
10.1
10.2
10.3

Portafolio 11/18

Construccion De Torre De Departamentos San Telmo (Albañilería)

Cliente: Grupo Constructor PEASA S.A. De C.V.
Monto de ejecución: $ 1'630,000.00
Tiempo de ejecución: 12 semanas
Periodo: Febrero a mayo de 2018
11.1
11.2
11.3
11.4
11.5
11.6
11.7
11.8

Portafolio 12/18

Construccion de Cuarto Secador En COMPAS

Cliente: Cooperation Manufacturing Plant Aguascalientes, S.A.P.I. de C.V.
Monto de ejecución: $ 3'692,924.53
Tiempo de ejecución: 12 semanas
Periodo: Marzo a mayo de 2018
12.1
12.2

Portafolio 13/18

Instalación De Luminarias

Cliente: Cooperation Manufacturing Plant Aguascalientes, S.A.P.I. de C.V.
Monto de ejecución: $ 340,639.75
Tiempo de ejecución: 1 semana
Periodo: Mayo de 2018
13.1

Portafolio 14/18

Resposición de Tablero

Cliente: Cooperation Manufacturing Plant Aguascalientes, S.A.P.I. de C.V.
Monto de ejecución: $ 75,476.00
Tiempo de ejecución: 1 semana
Periodo: Junio de 2018
14.1

Portafolio 15/18

Construcción de Trinchera

Cliente: Cooperation Manufacturing Plant Aguascalientes, S.A.P.I. de C.V.
Monto de ejecución: $ 226,854.58
Tiempo de ejecución: 4 semanas
Periodo: Julio - Agosto de 2018
15.1

Portafolio 16/18

Instalación Valvula de Extracción En DI

Cliente: Cooperation Manufacturing Plant Aguascalientes, S.A.P.I. de C.V.
Monto de ejecución: $ 220,465.87
Tiempo de ejecución: 4 semanas
Periodo: Agosto - Septiembre de 2018
16.1

Portafolio 17/18

Construcción de Muro de Tablaroca

Cliente: Cooperation Manufacturing Plant Aguascalientes, S.A.P.I. de C.V.
Monto de ejecución: $ 89,670.09
Tiempo de ejecución: 1 semana
Periodo: Agosto - Septiembre de 2018
17.1
17.2
17.3
17.4

Portafolio 18/18

Colocación De Bolardos

Cliente: Secretaría De Obras Públicas
Monto de ejecución: $ 1'244,787.25
Tiempo de ejecución: 4 semana
Periodo: Julio - Agosto de 2018
18.1
18.2
18.3

info. de contacto

  • Razón Social: Infraestructura Hidrocálida Carretera S.A. De C.V.
  • Domicilio: Av. Las Américas #901 Interior 303, Colonia Fuentes De La Asunción Aguascalientes, Ags.
  • Registro Patronal IMSS e Infonavit: A02-14909-10-1
  • RFC: IHC160302UF0
  • Teléfono: (449) 318 36 28
  • Correo electrónico: [email protected]

  •        Dé clic AQUI para enviar un mensaje.

Enviar mensaje

Todos los campos son obligatorios

Elements

Text

This is bold and this is strong. This is italic and this is emphasized. This is superscript text and this is subscript text. This is underlined and this is code: for (;;) { ... }. Finally, this is a link.


Heading Level 2

Heading Level 3

Heading Level 4

Heading Level 5
Heading Level 6

Blockquote

Fringilla nisl. Donec accumsan interdum nisi, quis tincidunt felis sagittis eget tempus euismod. Vestibulum ante ipsum primis in faucibus vestibulum. Blandit adipiscing eu felis iaculis volutpat ac adipiscing accumsan faucibus. Vestibulum ante ipsum primis in faucibus lorem ipsum dolor sit amet nullam adipiscing eu felis.

Preformatted

                                                                                                                                                                                                                                                                i = 0;

while (!deck.isInOrder()) {
    print 'Iteration ' + i;
    deck.shuffle();
    i++;
}

print 'It took ' + i + ' iterations to sort the deck.';
                                                                                                                                                                                                                                                            

Lists

Unordered

  • Dolor pulvinar etiam.
  • Sagittis adipiscing.
  • Felis enim feugiat.

Alternate

  • Dolor pulvinar etiam.
  • Sagittis adipiscing.
  • Felis enim feugiat.

Ordered

  1. Dolor pulvinar etiam.
  2. Etiam vel felis viverra.
  3. Felis enim feugiat.
  4. Dolor pulvinar etiam.
  5. Etiam vel felis lorem.
  6. Felis enim et feugiat.

Icons

Actions

Table

Default

Name Description Price
Item One Ante turpis integer aliquet porttitor. 29.99
Item Two Vis ac commodo adipiscing arcu aliquet. 19.99
Item Three Morbi faucibus arcu accumsan lorem. 29.99
Item Four Vitae integer tempus condimentum. 19.99
Item Five Ante turpis integer aliquet porttitor. 29.99
100.00

Alternate

Name Description Price
Item One Ante turpis integer aliquet porttitor. 29.99
Item Two Vis ac commodo adipiscing arcu aliquet. 19.99
Item Three Morbi faucibus arcu accumsan lorem. 29.99
Item Four Vitae integer tempus condimentum. 19.99
Item Five Ante turpis integer aliquet porttitor. 29.99
100.00

Buttons

  • Disabled
  • Disabled

Form